Ongoing Projects

SERINE VILLAS - PULLUVAZHY

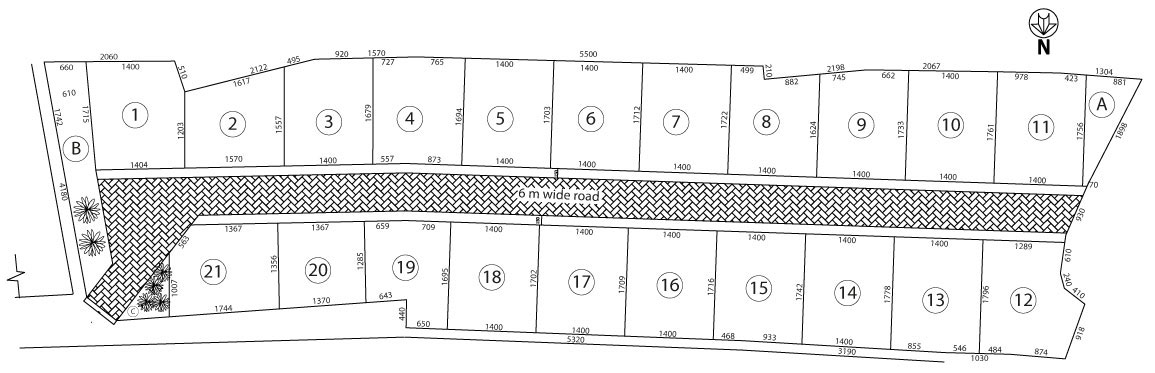
Serene Villas, Pulluvazhy, Perumbavoor is just 5 km away from Perumbavoor town, adjacent to the old Muvattupuzha Road. This is project is promoted by “Tom & Varkey Builders”, Perumbavoor. This project consists of 21 villas in an extend of 1.64 acres of land with wide road through the compound, children play area, park & common water source & tank.



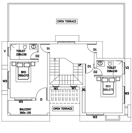
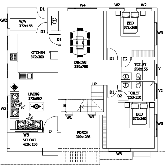
PLAN - A (2200 sft)

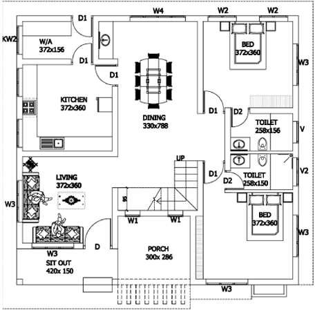
Ground Floor

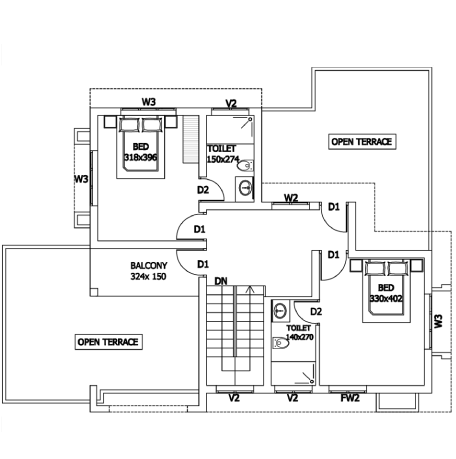
First Floor

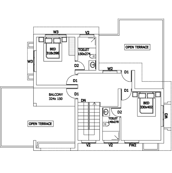
PLAN - B (2000 sft)

Ground Floor

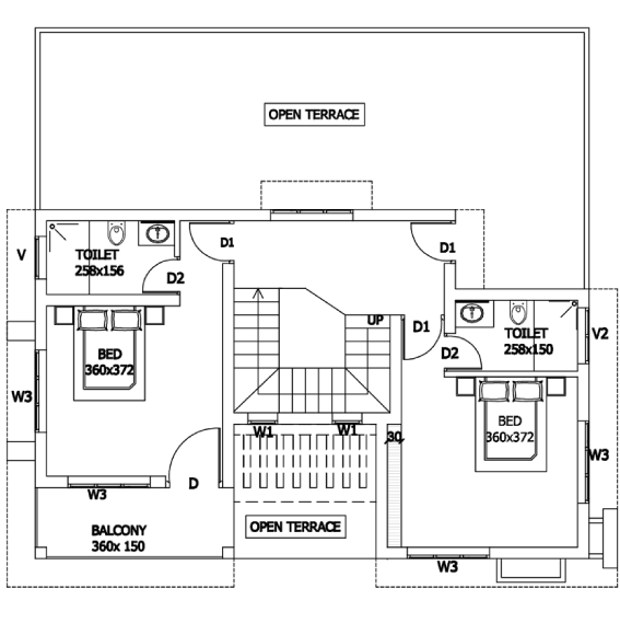
First Floor


DISTANCE

MC Road - 1 KM

Airport - 14.60 KM

Railway Station, Aluva - 17.00 KM

Perumbavoor - 4.50 KM

Muvattupuzha - 14.60 KM

Lulu Mall, Kochi - 23.15 KM

Project Gallery

Contact us now to get a custom tailored quote!

Contact Now